Overview
|Property ID: LA-15017
Description
*Please be advised that some lots/units may need confirmation of availability. Kindly ensure to check availability first by emailing or phoning us*
Warwick is a name shared by two main locations in Australia — one in Queensland and another in Western Australia. Warwick in Queensland is a rural town situated about 130 kilometres southwest of Brisbane, serving as a key regional centre for the Southern Downs Region. With a population of around 12,000 people, it offers a relaxed country lifestyle supported by a strong sense of community. The town features a mix of historic Queenslander-style homes and modern housing, along with essential amenities such as schools, shopping centres, healthcare facilities, and recreational areas.
The Condamine River runs through the town, providing scenic spots for walking and outdoor activities, while local events such as the Warwick Rodeo highlight its rich country heritage. The economy is primarily driven by agriculture, food processing, education, healthcare, and transport. Warwick experiences a moderate climate, with warm summers, cool winters, and an average annual rainfall of around 692 millimetres.
Meanwhile, Warwick in Western Australia is a residential suburb located about 16 kilometres north-northwest of the Perth CBD, within the City of Joondalup. Developed mostly during the late 1960s and 1970s, it is known for its leafy streets, established homes, and convenient lifestyle amenities. The suburb has a population of around 3,700 residents and is well connected by public transport, including the Warwick Train Station and several
Transperth bus routes. Warwick Grove Shopping Centre serves as the main retail hub, while Warwick Leisure Centre and the expansive Warwick Open Space provide recreational and sporting facilities. This suburb combines suburban comfort with easy access to the Perth city centre, making it a popular choice for families and professionals seeking a balanced lifestyle.
Additional Details
- Property Type: House and LandCashflow PositiveSMSF Single Contract
- Property Stage: N/A
- Price: $ 709,900.00
- Land Price: N/A
- Build Price: N/A
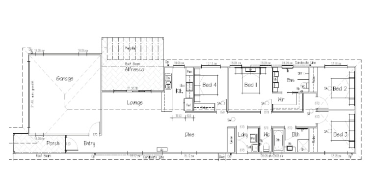
- Beds: 4
- Bath: 2
- Garage: 2
- Storey: 1
- Study: N/A
- Power Rooms: N/A
- MPR: N/A
- Powder Room: N/A
- Balcony: 1
- Floor Plan: N/A
- Completion: Q1 2026
- Land Size: 800
- Area Size: 195.00
- Year Built: N/A
- Est. Rates: N/A
- Est. Rent PW: 745.00
- Est. Body Corp.: N/A
- Title Status: Registered
- Gross Per Week: $ 745.00
- Gross Per Annum: $ 38,740.00
- Gross Yield: 5.46%
- Capital Growth 12 Months: 6.33%
- Capital Growth 10 Year Annualised: 5.03%
- Vacancy Rate: 0.42%
Property on Map
Schedule A Call

Discover your dream property
Immerse yourself in the captivating ambiance of our properties. Book a personalized tour to explore the exquisite beauty and unique features of our property.
Our knowledgeable staff will guide you through the property, answering any questions you may have.
Similar Listings
$ 38,740.00
5.46%
6.33%
0.42%
Lot 211 - Orchard Grove - Warwick
Warwick, Southern Downs, QLD, 4370- $ 709,900.00
$ 38,480.00
4.97%
6.48%
1.21%
Lot 1243 - Affinity Estate - Morayfield
Morayfield , Moreton Bay , QLD, 4506- $ 1,160,990.00
$ 38,480.00
4.70%
6.48%
1.21%
Lot 1214 - Affinity Estate - Morayfield
Morayfield , Moreton Bay , QLD, 4506- $ 1,160,990.00
$ 46,592.00
8.00%
3.26%
0.76%
Lot 942 - Co-Living Banyan Place W/ 5-Year Ren...
Officer, Melbourne, VIC, 3809- $ 920,700.00